23/2 Macdonald Street POTTS POINT NSW 2011

  • 1

Fully Furnished, move straight in - just bring your bags

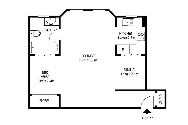
A bright top-floor studio apartment, presenting abundant space and versatility; with an enviable 39m2 floor-plan and will be freshly painted prior to lease starting.

"Winchester" is a well-maintained Art Deco Strata block of only 25, with lovely period features throughout the common areas, including: raked brickwork, lantern lights, wood railings and stain-glass windows. The apartment has a superb floor-plan lending itself to a dining-annex as well as a sleeping-alcove on the other side.

Polished floors and soaring ceilings, add further charm to this property, which offers bay-windows and a sunny and leafy outlook into highly-desirable McDonald Street.

Walking distance to the Botanic Gardens, CBD, Opera House and the harbour foreshores, as well a short stroll up to the best cafe' and restaurant scene in Sydney, this fantastic property is sure to enchant and delight.

Covid-19 rules for viewings - you must not attend if you are feeling unwell. Only 2 people will be allowed in the property at one time, hands will be sanitized before entry.

Please register your interest & for inspections click on the "book inspection" button or "email agent." Registering your details gives you live updates & priority access to all the information required to inspect and apply for this property. If an inspection is already booked register to join that inspection. Or call Phillippa for a time to suit you.

Agent Details

Phillippa Bevan

Phillippa Bevan

0450 123 545

0450 123 545

Email Agent

  • Anti-Spam Image
  • Submit

Property information

  • Property Type Studio
  • Price LEASED
  • Floorplans Download

Floorplan

View Floorplan

Brochure

View Brochure

Location